Смотреть вперёд
Дизайнеры из лаборатории архитектуры и дизайна LAD оформили интерьер загородного дома для молодого профессионального спортсмена

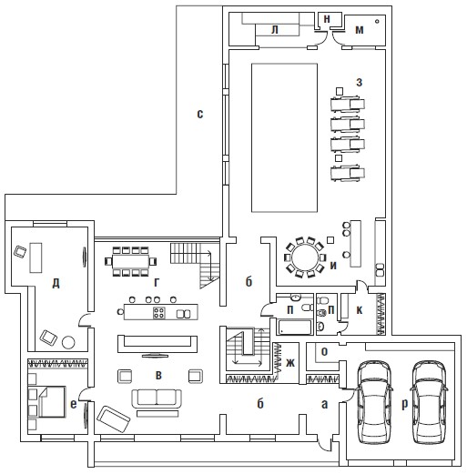
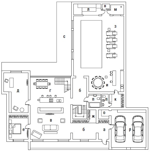
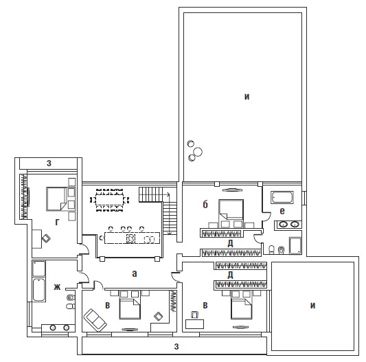
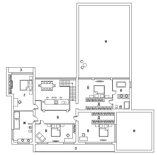
Заказчик обратился к Михаилу Кисенко и Василине Пашниной по рекомендации друзей и знакомых. Он приобрёл дом под Челябинском и нуждался в профессионалах, которые преобразили бы здание и участок: облагородили безликую бетонную коробку и прилегающую территорию, оформили интерьер, изменили планировку. Дополнительные пристройки и демонтаж не планировались — все работы дизайнерам предстояло осуществить в рамках уже имевшегося здания. «Каркас дома состоял из двух прямоугольных объёмов (крупный двухэтажный объём и вытянутый одноэтажный) со скатной крышей, — рассказывает Михаил. — На небольшом участке такие формы смотрелись достаточно грузно и невыразительно. Сама территория была совершенно пустой: никаких зелёных насаждений, а окружающая застройка состояла исключительно из однотипных фахверковых домов и классических входных групп. Заказчик же хотел чего‑то более современного, стилистически выверенного».


