С чистого листа
Дизайнеру удалось выстроить в этой квартире, расположенной в Хамовниках, полноценное жилое пространство для шестерых человек

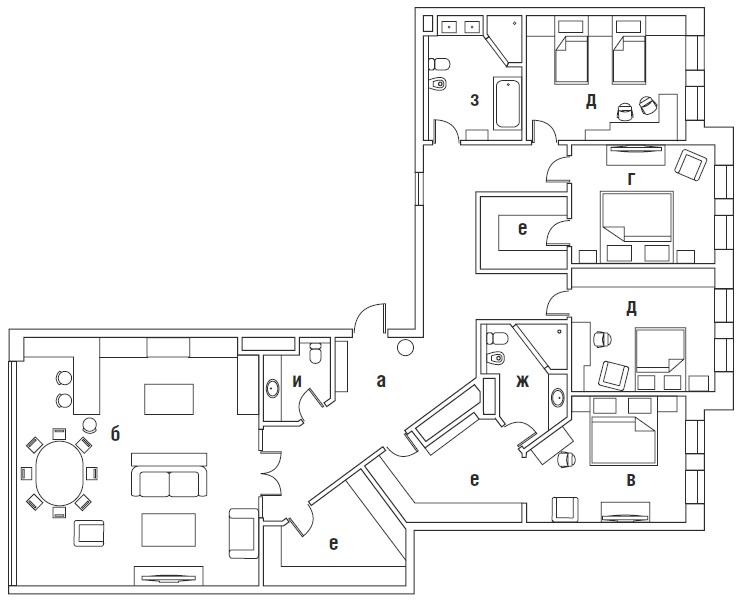
Автору проекта Анне Разумеевой-Смирновой необходимо было объединить в одно пространство две квартиры с большим количеством помещений без естественного освещения. Здесь предстояло разместить четыре спальни: для родителей, двух мальчиков, одной девочки и ещё довольно молодой бабушки, три санузла, гардеробные и большую гостиную–кухню–столовую.

Чтобы избавиться от ощущения углового пространства, дизайнер спроектировала диагональный коридор, соединивший обе квартиры. А в помещениях с искусственным светом разместила санузлы, гардеробную и хозяйственные комнаты. Большой балкон с фронтальным и верхним остеклением присоединили к общему пространству гостиной и столовой, благодаря чему образовалась комфортная общая зона с небольшим зимним садом для всей семьи. И если с планировкой хозяйка была полностью согласна, то в отношении дизайна она высказала весьма категоричное пожелание: «Вся квартира должна быть решена в светлых бежевых тонах». Однако за время работы над проектом у заказчицы постепенно изменилось восприятие цвета. Шаг за шагом дизайнер «раскрывала» для неё всё новые и новые цвета и оттенки. Прихожая, с проектирования которой началась работа, действительно, выполнена в сочетаниях двух оттенков — бежевого и верблюжье–коричневого тонов. В гостиной Анна уговорила хозяйку добавить немного бирюзового в качестве
