Радикальные меры
Архитектор Рина Ловко оформила интерьер киевской квартиры в своём любимом бескомпромиссно–минималистском стиле

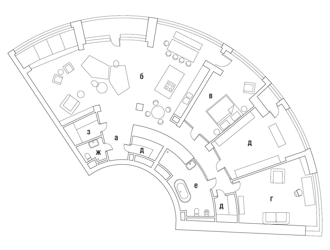
Отличительная черта квартиры в новом жилом комплексе в центре Киева — радиальные стены. Нестандартная форма пространства создавала определённые сложности в проектировании, что ещё больше подогревало профессиональный азарт архитектора. «Планировка — это база, фундамент любого пространства, — рассказывает Рина Ловко. — Если она не учитывает все потребности заказчика и в ней некомфортно жить, никакая дизайнерская мебель и аксессуары не смогут этого исправить. Именно поэтому наша мастерская уделяет больше внимания именно организации пространства. Несмотря на то что общая площадь квартиры довольно большая — 207 квадратных метров, из-за сложной геометрии пространства стандартные приёмы не работали, но мы сделали всё, чтобы хозяевам было максимально комфортно». В плане квартира представляет собой часть круга, разделённого на секции. Несколько секций архитектор объединила, сформировав единое пространство гостиной–столовой–кухни–прихожей. В соседней секции сделала спальню, в которую ведут два входа — из коридора и из столовой зоны. Ещё одну секцию архитектор отвела под гардеробную комнату с зоной макияжа у окна, двумя шкафами, островным комодом и витринным шкафом, изготовленным по своим эскизам. Для увеличения освещённости тёмных зон было принято решение заменить часть стен на стеклянные перегородки со встроенными дверями, позволив дневному свету проникнуть в самые отдалённые уголки квартиры. За одной из таких перегородок Рина Ловко поместила в том числе хозяйский санузел.





Заказчица мечтала о современном, функциональном жилом пространстве. Но при этом не сухом и строгом, а уютном, с яркими акцентами. «Взяв за основу принципы минимализма, мы сознательно прятали всё лишнее, — поясняет автор проекта. — К примеру, за панелями у входа в квартиру скрыли системы хранения и электрический щиток. Чтобы разгрузить основное пространство от шкафов и предметов быта, мы организовали несколько скрытых от глаз зон: дополнительные гардеробные комнаты, постирочную и гостевой санузел. Даже от телевизоров отказались. Вместо них в квартире используются проекторы, а экранами для проецирования изображений и видео служат стены спальни и гостиной».
На фоне бетонных поверхностей эффектно и концептуально смотрится дизайнерская мебель








Концептуальность интерьера усиливают бетонные поверхности стен и потолка, покрытые лессировочным полупрозрачным лаком, и пол из микроцемента. На этом брутальном фоне особенно эффектно смотрится дизайнерская мебель. «К счастью, хозяева согласились на все наши рекомендации в отношении подбора знаковых вещей, которые привносят динамику в облик пространства, — продолжает Рина. —Несмотря на строгие формы и минимум предметов обстановки, интерьер получился уютным благодаря цветовым акцентам. Палитру задаёт живописное полотно на стене у обеденного стола, цвета которого перекликаются со встроенными шкафами на кухне и терракотовой плиткой Mutina, покрывающей столешницу острова. Картину дополняют голубой барный стол Mushroom Table собственного производства, книжный стеллаж того же оттенка, полосатый ковёр Vandra Rugs и красное культовое кресло UP5 по дизайну Гаэтано Пеше».
«Наша мастерская специализируется на современных интерьерах, выполненных в элегантном минимализме. Этот проект не исключение. Благодаря тому что многие реализованные нами проекты публикуются в мировых архитектурных изданиях, заказчики приходят на наш фирменный, узнаваемый стиль, уже на первой встрече понимают, с чем и как мы работаем, разделяют философию студии, сформировавшуюся за последние десять лет»
Общая площадь 207 м²

Автор проекта архитектор Рина Ловко (Rina Lovko Studio, г. Киев)
Фото: Евгений Авраменко
