Новый дом
Сначала архитектор Александра Фёдорова спроектировала интерьер этого особняка, а уже затем... построила сам дом!

Заказчики нашли бюро Александры Фёдоровой через Интернет, посмотрев сайт. Перед командой архитекторов стояла задача спроектировать интерьер московского дома. Коробка уже была — особняк с фасадом в английском стиле. Дизайн–проект готов, начались работы. Но тут оказалось, что здание построено некачественно. Была масса конструктивных проблем, в частности сложности с гидроизоляцией. Александра говорит, что даже если проблему удалось бы решить на этапе формирования интерьера, через несколько лет она всё равно дала бы о себе знать. В итоге заказчики и архитекторы приняли решение... дом снести, отстроив с нуля уже в правильных материалах и без конструктивных огрехов. Но так как дизайн–проект интерьера к этому моменту состоялся и был сделан с учётом уже заданных конструктивных параметров, то дом построили точно таким, каким он был изначально по метражу и планировке. Сохранили даже общую стилистику фасадов в проклассическом стиле. Единственное существенное изменение, которое привнесли архитекторы,—это надстройка третьего этажа. Изначально здесь была малофункциональная мансарда, а в итоге появился полноценный этаж, которому отведена своя роль.






Не менее интересная и, что удивительно, похожего содержания история произошла и на стадии создания интерьера дома. Александра спроектировала красивый архитектурный элемент в виде лестницы из кориана, связавшей все три этажа особняка. Конструкция лестницы представляла собой ступени, положенные одна на другую, с определённым соотношением высоты и ширины. Чтобы конструкция «состоялась», нужно было очень чётко, до миллиметра, выдержать все размеры и пропорции. Но в процессе «зашивки» лестничного марша закрались погрешности, что убивало образ. Пришлось... лестницу сломать и возвести снова!
Александра Фёдорова: «Этот интерьер отражает характер заказчиков: это спокойные, приятные, семейные люди. И проект получился такой же: гармоничный, сдержанный, ровный, в нашей стилистике, которая сразу понравилась заказчикам. Он ассоциируется с отдыхом. Нам не приходилось ничего менять в процессе. Изначально обговорив все детали, мы впоследствии чётко работали по этому намеченному плану»
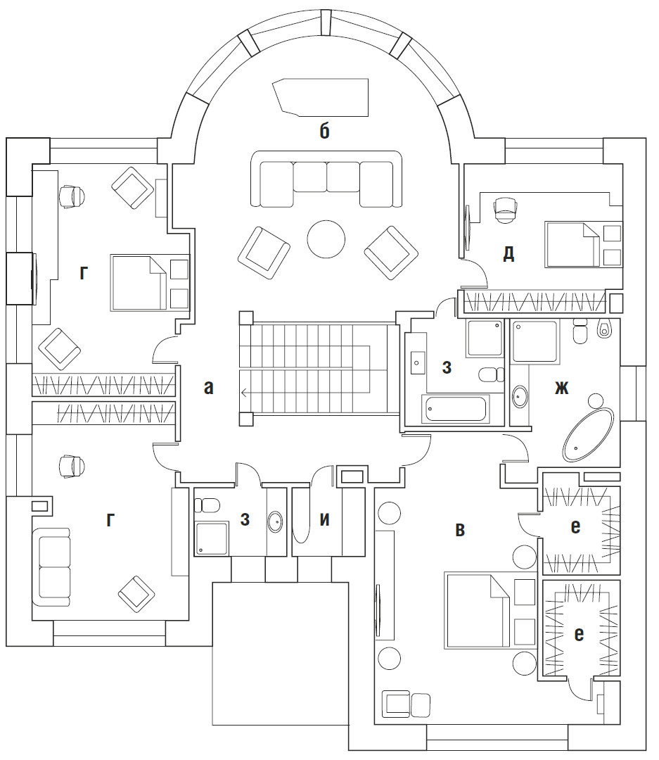
Заказчики — большая семья с четырьмя детьми. Они хотели, чтобы интерьер был спокойным, гармоничным, обволакивающим. Ещё одной важной задачей было создать каждому своё пространство, где он мог бы уединиться, и вместе с тем продумать общие зоны, где семья могла бы проводить время вместе. На первом этаже сосредоточены все общественные помещения, которые представляют собой фактически единое пространство. Хозяину дома нужен был рабочий кабинет, но он не хотел делать его изолированным, чтобы не только работать, но и общаться с семьёй. Поэтому рабочий блок сделали частью общего пространства гостиной–столовой–кухни, но зонировали с помощью конструктивного элемента со встроенным биокамином. Второй этаж полностью отведён под спальни. Для детей сделали общую игровую, чтобы они могли веселиться вместе. Третий этаж отдан под гостевые, детские спальни и комнаты прислуги.
Стиль, в котором, оформлен интерьер, сложно назвать экоминимализмом. «Это современный интерьер, но с акцентом на домашнем уюте, — рассказывает архитектор. — Спокойная цветовая гамма, натуральные материалы, эргономичная мебель известных брендов — мы создали дом для жизни, для большой, дружной семьи».






Общая площадь 670 м2


Авторы проекта архитекторы Александра Фёдорова, Ирина Ванеева, Сергей Калюта (Архитектурное бюро Александры Фёдоровой, г. Москва)
Фото: Илья Иванов
