Интерьер подмосковного дома на контрасте классики и современных мотивов

SALON-InteriorДизайн

Найти равновесие

Интерьер этого подмосковного дома строится на контрасте классики и современных мотивов

Текст: Александра Волгина. Фото: Виктор Чернышов

Парадная столовая. Заказчики любят принимать гостей и собираться большой компанией за общим столом. Планировка столовой с застеклёнными дверями и естественным освещением создаёт приподнятую атмосферу и располагает к приятной беседе. Комод, бра, Eichholtz. Люстра, Heathfield&Co. Встроенный шкаф выполнен по эскизам дизайнера

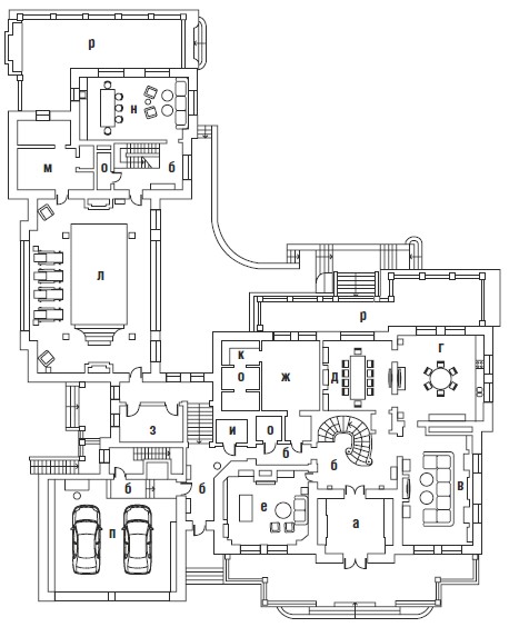
Загородный дом в стиле шале расположен в посёлке Княжье Озеро на Новорижском шоссе. Начали с того, что снесли и заново отстроили третий, мансардный этаж, переоформили входную группу, сделали террасы и пристройки: гараж с комнатами для проживания персонала над ним, бассейн с зоной отдыха и зоной барбекю, сауну. Первый этаж отвели под общественную зону с гостиной, кухней–столовой и кабинетом. На втором этаже — ещё один кабинет и приватные помещения: спальня хозяев с двумя гардеробными (женской и мужской) и две детские комнаты с собственными санузлами и гардеробными. Заказчики — любители собирать у себя дома друзей, поэтому для них обустроили два гостевых блока.

I этаж: а) прихожая–холл б) холлы в) гостиная г) кухня д) столовая е) кабинет ж) гостевая комната з) курительная комната и) кладовая к) гардеробная л) бассейн м) сауна н) комната отдыха о) санузлы п) гараж р) террасы
II этаж: а) холлы б) кабинет в) спальня хозяев г) детские комнаты д) гардеробные е) гостевая комната ж) ванная комната з) детские санузлы и) гостевой санузел к) комнаты обслуживающего персонала

Авторизуйтесь, чтобы продолжить чтение. Это быстро и бесплатно.

Регистрируясь, я принимаю условия использования

Открыть в приложении