Мужская квартира может быть не только тотально брутальной

SALON-InteriorДизайн

Мужская берлога

Она может быть не только тотально брутальной, но и изысканно артистичной, как в интерьере этой киевской квартиры

Текст: Ольга Вологдина. Фото: Андрей Авдеенко

Общий вид гостиной–столовой. Диван, кресло, журнальный столик, Ditre Italia. Люстра, Brand Van Egmond. Стулья, Gubi. Бра, DCW. Потолочные светильники, Wever&Ducré. Декоративные круги, Natuzzi

Интерьер квартиры — своего рода художественный эксперимент, и очень удачный, судя по результату. Неоклассическая стилистика как база, основа, в качестве модных приёмов — элементы лофта и современный арт. «Изначально владельцу квартиры хотелось, чтобы интерьер был выдержан в неоклассическом стиле, — рассказывает Виктория Витковская. — Нам показалось это несколько пресным, и мы предложили добавить чуточку брутального мужского шика.

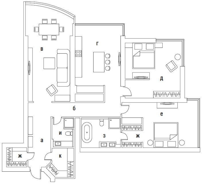
а) прихожая б) холл в) гостиная–столовая г) кухня д) гостевая комната е) спальня хозяина ж) гардеробные з) ванная комната и) гостевой санузел к) постирочная

Интерьер в конечном итоге стал полным отображением своего хозяина, в нём гармонично сочетаются консервативность, приверженность семейным традициям и в то же время мужественность и яркая харизма». Цветовая гамма преимущественно монохромная, в оформлении преобладают серые и белые оттенки. За энергетику отвечают яркий декор, текстиль и гранатово–винные стены в коридоре, которые появились далеко не случайно. «Хозяин — большой ценитель вина, его любимый сорт — красное пино–нуар, — продолжает Виктория. — Нам хотелось отразить в интерьере эту тему. Так появились профессиональный холодильник для охлаждения вина, специальные бокалы Riedel, красные стены.

Авторизуйтесь, чтобы продолжить чтение. Это быстро и бесплатно.

Регистрируясь, я принимаю условия использования

Открыть в приложении