Мир, гольф, май
Инга Моисеева и Елена Солдатова из бюро DOGMA interior design оформили для своих заказчиков интерьер квартиры в ближнем Подмосковье
Квартира в малоэтажном поселке — удобный формат загородной жизни. Вот и владельцы этой квартиры — молодые супруги с двумя детьми, страстные любители гольфа — выбрали именно его, чтобы быть ближе к природе и… к своему любимому виду спорта. Дело в том, что дом, где она находится, построен на территории гольф-клуба. В архитектуре — никакой вычурности, а из панорамных окон открывается великолепный вид на ландшафт. Теплыми вечерами здесь можно удобно расположиться всей семьей на просторной лоджии — террасе. Конечно, такие исходные данные не могли не повлиять на интерьер. Дизайнеры Инга Моисеева и Елена Солдатова старались использовать приемы знаменитого архитектора Фрэнка Лойда Райта, когда сама природа диктует правила наполнения интерьера. Основой такой работы является создание сдержанной цветовой гаммы, призванной поддержать ландшафт за окном. Это словно правильно выбранная рама для картины, задача которой не перекричать, а лишь подчеркнуть наличествующую красоту. Тщательно выверенный подбор отделочных материалов создает эффект перетекания природы в интерьер, размывая границы между внутренним наполнением и миром извне.
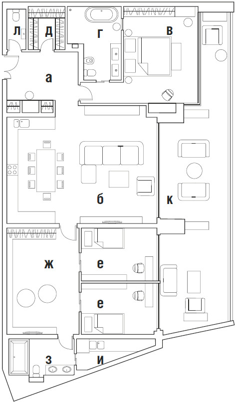
Планировка понятная и разумная: гостиная и кухня — в объединенном пространстве, спальня родителей — в отдельном крыле. У каждого из детей — своя детская, при этом для них сделали и общую игровую комнату. Дизайнеры спроектировали родительскую и детскую ванные комнаты, а в общей зоне — гостевой санузел. В дальнем отдельном крыле разместили техническое помещение, где находятся стиральные и сушильные машины, раковина, место для глажки белья.












Стиль пространства — современный. Это было одним из главных пожеланий хозяев. Никаких молдингов, никаких высоких потолочных карнизов. И вообще, никакой нарочитости — такой посыл транслировали в интерьере Инга Моисеева и Елена Солдатова. Помимо того, что сопряжение стен и потолков по-минималистски простое, еще и цветовая гамма спокойная и выверенная, и все оттенки единой насыщенности, а яркие акценты немногочисленны. «Здесь самым активным акцентом служит вид на просторы, за окнами, — объясняют авторы проекта. — Это создает эффект умиротворения, располагает к отдыху, подключает к размеренному, неспешному течению жизни на природе, к жизни самой природы. Этим интерьером мы только слегка подчеркнули то, что уже является естественным украшением этого дома».
Гостиная — одно из самых эффектных пространств. Композиция симметрична, что комфортно еще и психологически: симметрия говорит нашему сознанию об устойчивости, надежности, защищенности. Живое пламя биокамина ABC Fireplace добавляет уюта. Напротив камина — внушительная консоль UNION из темного стекла с настольными лампами. В зоне отдыха рядом с ТВ-панелью — удобный элегантный диван российского бренда YACHTLINE. В глубине расположена минималистичная кухня NOLTE с гладкими фасадами и полным набором надежной техники. «Кухня по ощущению похожа на дорогой автомобиль с мощным мотором», — делятся впечатлениями дизайнеры. Над обеденным столом — воздушные светильники VIBIA. Они подчеркивают парадность пространства, а кроме того, рельефное стекло плафонов необычно преломляет свет и дает отличное мягкое освещение. В потолке установили приточно-вытяжную систему вентиляции с тонкими щелевыми решетками диффузоров, которые гармонично смотрятся с трековой системой освещения от компании «ЦЕНТРСВЕТ». Комфорт продуман до мелочей: например, уходя, можно выключить весь свет и технику в квартире одной кнопкой.
Общая площадь 142 м2
Авторы проекта дизайнеры Инга Моисеева, Елена Солдатова, DOGMA interior design (www.dogmainterior.ru)
