Классика для молодёжи
Архитекторы Игорь Метёлкин и Ведран Бркич создали комфортный современный интерьер на классической основе для двух молодых людей — брата и сестры

Эта уютная квартира принадлежит двум студентам — брату и сестре. Она расположена в столичном жилом комплексе премиум–класса с отличными видовыми характеристиками — из окон открывается прекрасная панорама города. Площадь квартиры — 93 квадратных метра. Разработать дизайн–решение молодые люди поручили бюро Ab–architects — им понравились проекты, реализованные компанией.
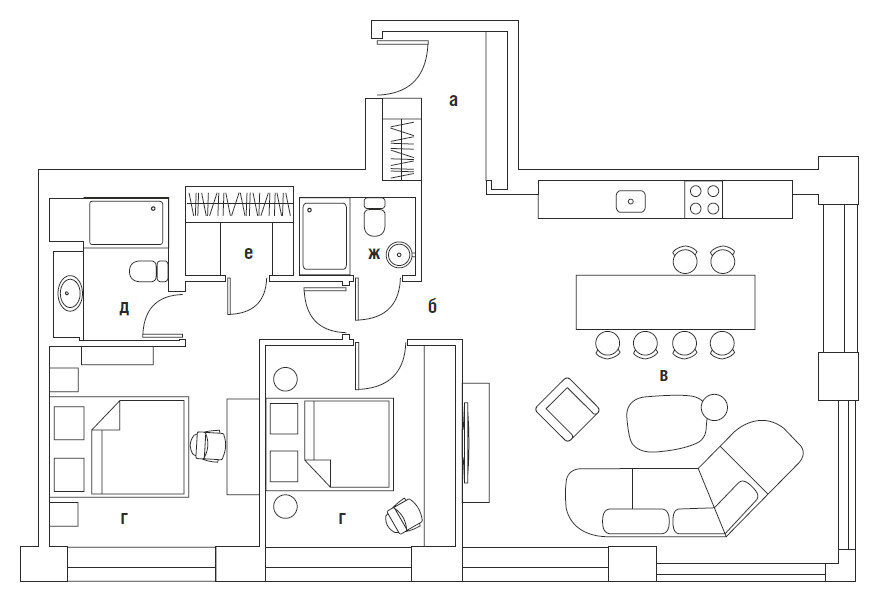
Кухня-гостиная предназначена для непринуждённого времяпрепровождения и по площади занимает практически половину квартиры. Она создана с расчётом, чтобы молодые люди могли с комфортом проводить своё свободное время, любуясь видом на город. Кухонная зона выполнена лаконично, но в то же время функционально и компактно.
В приватной половине находятся спальни молодого человека и девушки, со своими отдельными ванными комнатами.






Стилевое решение интерьера Игорь и Ведран определяют как «современная классика». Классическая оболочка — светлые окрашенные стены, декорированные лепниной, и широкие карнизы — сочетаются с лаконичной современной мебелью в основном итальянского производства и многочисленными арт–объектами, расставляющими яркие акценты на нейтральном фоне. Тёплые тона и натуральные материалы — таковы были пожелания заказчиков на первой встрече. Авторы проекта выбрали для всей квартиры бежево–серую цветовую гамму, которая удачно коррелирует с фасадами жилого комплекса. Сложность, по признанию архитекторов, была в том, что из окон также видна одна из башен комплекса с жёлтыми фасадными панелями. Чтобы они не создавали диссонанс с основной гаммой интерьера, Игорь и Ведран использовали на окнах широкие портьеры насыщенного серо–бежевого цвета. Вечером они, как и кухонная ниша, эффектно подсвечиваются. В кухне–гостиной, кроме современной мебели и предметов искусства, важную роль также играют натуральные фактурные материалы: кухонный фартук и поверхность острова облицованы серым кварцитом с прожилками, на полу — паркет, уложенный французской ёлкой из белёного дуба под маслом. Квартира сдавалась застройщиками в отделке white box, с уже имеющимися инженерными системами. В ходе проектирования архитекторы учитывали выполненные работы по инженерии и старались вносить в них минимальные изменения. Для освещения преимущественно использовали споты, трековую подсветку и торшеры — современные системы света, управлять которыми можно с помощью смарт–технологий. Узкие щелевые решётки кондиционеров окрасили в цвет стен, так что они практически незаметны. Таким образом, присутствие инженерии в интерьере было минимизировано.





У каждой из спален свой характер. Комната девушки получилась нежной, с вкраплением коралловых оттенков. Обращают на себя внимание стол и тумбочки из микробетона, выполненные российским производителем The Ply по индивидуальным эскизам. Ножки стола из радужного стекла дают интересную игру света и тени. Молодой человек предпочёл более строгое, аскетичное решение, но его комната при этом не лишена тепла и уюта. В разной стилистике оформлены и санузлы. Авторы проекта считают, что им удалось гармонично соединить в интерьере разные подходы, найти в конечном итоге компромиссное решение, которое понравилось обоим владельцам, и создать здесь молодёжную, современную атмосферу, сдержанную и яркую одновременно.
Общая площадь 93 м2

Авторы проекта главный архитектор проекта Игорь Метёлкин, архитектор Ведран Бркич (бюро Ab–architects, г. Москва)
