Интерьер отражает сильную личность хозяйки: чёткость, целеустремлённость

Идеи Вашего ДомаДизайн

Не выходя за рамки

Интерьер отражает сильную личность хозяйки: чёткость, целеустремлённость. Тонкие рамки, присутствующие в отделке стен и потолка, — аллюзия к упорядоченной, идущей по определённым правилам жизни. Поскольку бюджет имел большое значение, хозяйка сама руководила ремонтом, а все товары, в том числе и мебель, были тщательно подобраны

Текст: Татьяна Гронская. Дизайнер: Юлия Лёвина. Художественная роспись стен: Анна Платонова. Фото: Сергей Кузнецов

Площадь — 60 м2. Отделка стены натуральным деревом вносит в современный интерьер кухни-гостиной тепло и уют. Практически незаметная дверь скрытого монтажа ведёт в спальню. Такое решение позволяет воспринимать гостиную как полноценную, а не проходную комнату

Главными пожеланиями владельцев новой квартиры, расположенной на северо-западе столицы, в доме серии «ДОММОС», являлись современное интерьерное решение и индивидуальная планировка. Хозяйка — молодая женщина, бизнес-леди — считает важным совместный досуг с сыном-подростком, для чего им оптимально подходит объединённая кухня-гостиная. В то же время каждому из членов семьи требовалось личное пространство.

Перепланировка. Возможности перепланировки двухкомнатной квартиры в панельном доме, так называемой распашонки, то есть с окнами, выходящими на противоположные фасады, изначально были ограничены. Поиграть пространством позволяла лишь левая часть квартиры, в которой между кухней и жилой комнатой имелся фрагмент ненесущей перегородки. Его ликвидировали, тем самым выделив отдельную хозяйскую спальню и объединённую кухню-гостиную необычной конфигурации. Очевидными плюсами такого решения стали: увеличение количества жилых помещений (три вместо двух), приватность спальни хозяйки, ощущение свободного, а не замкнутого пространства репрезентативной зоны и естественная освещённость гостиной без окон. Свет из окна кухни теперь проникает не только в гостиную, но даже в холл при входе в квартиру.

Вместо того, чтобы искать предмет искусства для гостиной, дизайнер написала картину сама, используя палитру, оптимально подходящую к данному интерьеру

Ремонт. Квартира досталась вообще без ремонта: в ней не было ни стяжки, ни разводки электрики. Первым делом были проложены все недостающие коммуникации, достроены перегородки и заменены окна. Пластиковые окна от застройщика оказались некачественными. Новые межкомнатные перегородки возвели из пеноблоков — мелкоштучного материала достаточной плотности. Чтобы скрыть коммуникации, использовали гипсокартон, из которого сделали участки стен в кухне и санузле, а также потолок. Потолок из гипсокартона на металлическом каркасе опущен по минимуму, на 6 см — высоту встроенной части светильников. В присоединённых лоджиях утеплили стены, потолки, устроили электрические тёплые полы, вставили двойные стеклопакеты. 

Выбор отделочных материалов обусловлен современной эстетикой. За небольшим исключением стены и потолки покрыты интерьерными красками. На полу поверх цементно-песчаной стяжки в жилых помещениях положена паркетная доска, в мокрых и входной зонах — керамогранит.

Дизайн. Выбор хозяйкой современной интерьерной стилистики позволил дизайнеру создать пространство, перекликающееся с экстерьером и архитектурой дома. Пространство, удобное в быту, простое и уютное, для людей, которые много работают и путешествуют. Пространство, за которым легко и быстро ухаживать, но в то же время такое, в котором не теряется ощущение дома.

Рабочая зона кухни: холодильник, СВЧ, мойка, рабочая поверхность, плита — образует эргономичный треугольник и включает всё необходимое для быстрого приготовления пищи и наведения чистоты

Рассказывает автор проекта

Дизайнер Юлия Лёвина

Мне хочется поблагодарить заказчицу за внимательное отношение к моим идеям. Авторского надзора не было. И я — как часто бывает в таких случаях — уже настроилась, что профессиональные дизайнерские решения уйдут в стол. Неподготовленному заказчику сложно разобраться в нюансах. Рано или поздно наступает усталость от ремонта, от общения с поставщиками и строителями, от финансовых затрат. И человек, который сталкивается с ремонтом впервые, словно соскакивает с нужного направления, отходит от проекта и действует «уже как-нибудь, только бы быстрее». Или увлекается «самодизайном». В результате и у автора, и у заказчика рождается недовольство. Был проект, была красивая картинка, но она не получилась. Потому что реализация оказалась просто не по силам человеку, далёкому от работы с интерьером. Но в данном случае всё закончилось благополучно. Заказчица, уверенная и самостоятельная в жизни, так же уверенно и самостоятельно занималась новым для неё делом. И всё получилось превосходно. Именно по этой причине считаю её своим полноценным соавтором.

Монохром плюс...

Заказчица хотела монохромную цветовую гамму. Перед началом проектирования она обсуждала с дизайнером сдержанность, строгость и чёткость будущего интерьера квартиры, исполненного в белых, серых и чёрных тонах. Однако дизайнер предложила взять монохром лишь за основу в выборе цветовой палитры. Чтобы бело-серо-чёрные цвета не казались мрачными и слишком холодными в интерьере, их смягчили тёплыми оттенками дерева и сине-зелёным цветом в кухне, нежными голубыми оттенками в спальнях.

Точь-в-точь

Стены детской украшают обои-панно «Облака». Материал поставляется на заказ только целой композицией, а не произвольным количеством рулонов, поэтому был куплен впритык. И его не хватило на отделку рабочего уголка. Из положения вышли оригинальным образом. Пригласили художницу, которая красками в точности повторила рисунок обоев.

***

План до ремонта

Технические данные

до ремонта:

  • общая площадь — 60 м2
  • высота потолков — 2,61 м

после ремонта:

  • общая площадь — 60 м2
  • высота потолков — 2,55 м

Весь объект

  • Двери: «Софья»
  • Стены: гипсокартон, краска, обои, художественная роспись
  • Плинтусы: полиуретановые Orac Decor, краска
  • Подоконники: искусственный камень
  • Электроустановочные изделия: Livolo
  • Оборудование: радиаторы Arbonia, кондиционеры Mitsubishi
  • Окна: Kaleva
  • Шкафы встроенные: Gvarneri
  • Светильники: интернет-магазин basicdecor.ru

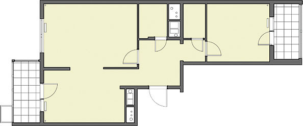
План после ремонта

1. Спальня — 8,4 м2. Гостиная — 11,5 м2 3. Ванная — 2,8 м2, туалет — 2 м2 4. Детская — 10,4 м2, лоджия — 4 м2 5. Прихожая — 6,9 м2 6. Кухня — 10 м2 и лоджия — 4 м2

Спальня — 8,4 м2

  • Пол: паркетная доска Panaget
  • Стены: художественная роспись Анны Платоновой
  • Мебель: шкаф Gvarneri, кровать и столики — интернет-магазин inmyroom
  • Светильники: basicdecor.ru
  • Аксессуары: H&M Home

Гостиная — 11,5 м2

  • Пол: паркетная доска Panaget
  • Стены: краска Tikkurila
  • Мебель: камин kamin-v-dome.ru, диван и столик — интернет-магазин imodern.ru
  • Светильники: профильный свет Artlight, остальные basicdecor.ru
  • Деревянные панели: на заказ в частной столярной мастерской
  • Аксессуары: собственность хозяев, ковёр Amikovry КАРТИНА: авторская работа Юлии Лёвиной (холст, акрил)

Ванная — 2,8 м2, туалет — 2 м2

  • Пол: керамогранит VENIS, краска
  • Стены: керамогранит VENIS, краска
  • Сантехника, смесители, мебель: Am.Pm
  • Светильники: basicdecor.ru
  • Аксессуары: магазин «Твой дом»

Детская — 10,4 м2, лоджия — 4 м2

  • Пол: паркетная доска Panaget
  • Стены: обои-панно «Облака» ID Wall, художественная роспись Анны Платоновой
  • Мебель: шкафы, стеллаж — Gvarneri, диван и столик — интернет-магазин inmyroom
  • Светильники: профильный свет Artlight, остальные basicdecor.ru
  • Аксессуары: H&M Home, ковёр Amikovry

Прихожая — 6,9 м2

  • Пол: керамогранит Italon
  • Стены: краска Tikkurila МЕБЕЛЬ: консоль — интернет-магазин imodern.ru, шкаф — на заказ
  • Светильники: интернет-магазин basicdecor
  • Аксессуары: H&M Home

Кухня — 10 м2 и лоджия — 4 м2

  • Пол: керамогранит Italon
  • Потолок: гипсокартон, краска
  • Стены: краска Tikkurila
  • Мебель: кухня Gvarneri, стол и стулья — интернет-магазин loftdesigne.ru
  • Светильники: профильный свет Artlight, люстра basicdecor.ru
  • Аксессуары: Zara Home, H&M Home
  • Бытовая техника: Electrolux

Экспресс-подбор

Чёткость и упорядоченность среде обитания придают ахроматическая гамма, стеновое покрытие с геометрическим орнаментом, конструктивно простая, но утилитарная обстановка.

Дизайнер: Юлия Лёвина, Фото: Сергей Кузнецов, ИКЕА, Lussole (2), Am.Pm (2), Fabbian, Zara Home (2), SK Design, Kährs (2), La Redoute Intérieurs

Авторизуйтесь, чтобы продолжить чтение. Это быстро и бесплатно.

Регистрируясь, я принимаю условия использования

Открыть в приложении